🏠Eladó családi ház Ráckeve központjában – kiváló befektetési lehetőség! – CS22
Ráckeve központjában, boltok, óvoda, bölcsőde és iskola közvetlen közelében eladó…
Árcsökkenés, CSAK NÁLUNK!, Kiemelt
23.000.000- Ft irányár
Segíthetünk Önnek?
Mobil: +36-30-921-0415
Ráckeve, 2300 Magyarország
Kiemelt, Új építésű
94.500.000- Ft

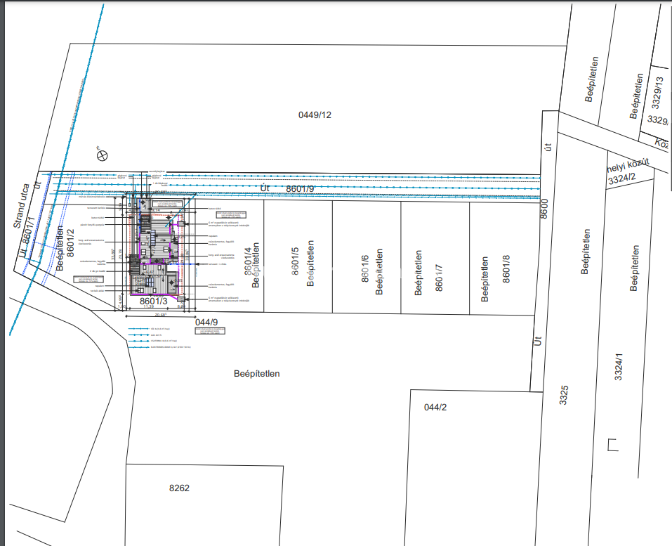
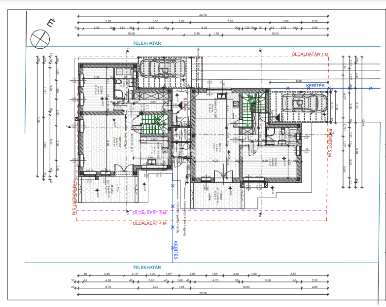
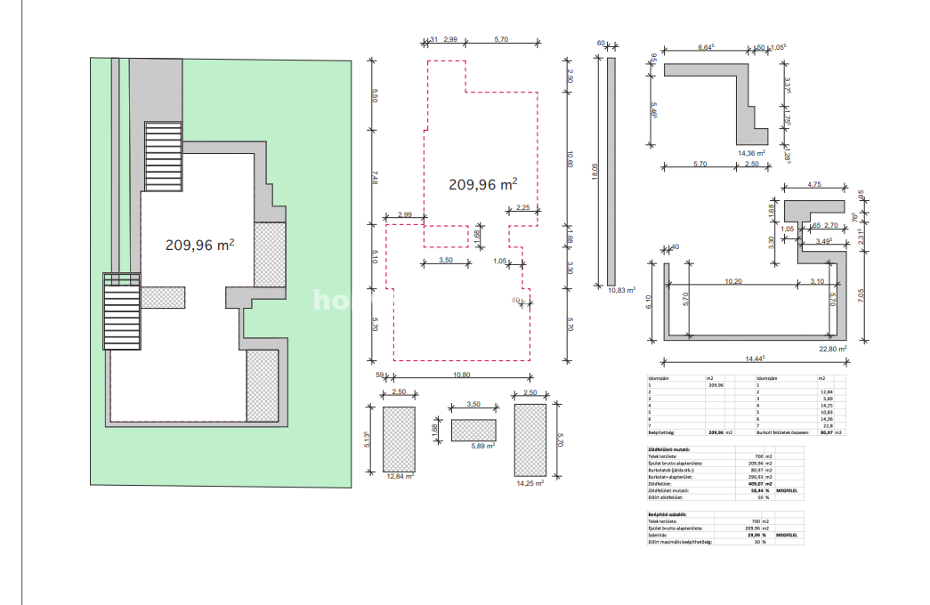
Ráckeve igényes lakókörnyezetében kínálja 30 év építőipari tapasztalatú cég ezt a minden előírásoknak megfelelően korszerű, energiatakarékos megoldásokkal és minőségi anyagokból épült kétszintes ikerházat,(szabad) a CSOK és a BABAVÁRÓ hitel mellett a ZÖLDHITEL elvárásainak is megfelelő tartalommal. Ráckevén a családok számára ideális helyen van: zöldövezetben, vízpart (Ráckevei Duna-ág), termál fürdő, Tesco és közlekedési csomóponthoz (HÉV, VOLÁN helyközi és Budapestre buszjáratok) közel.
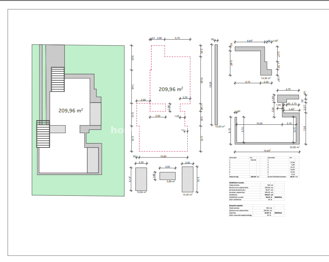
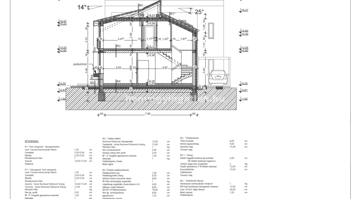
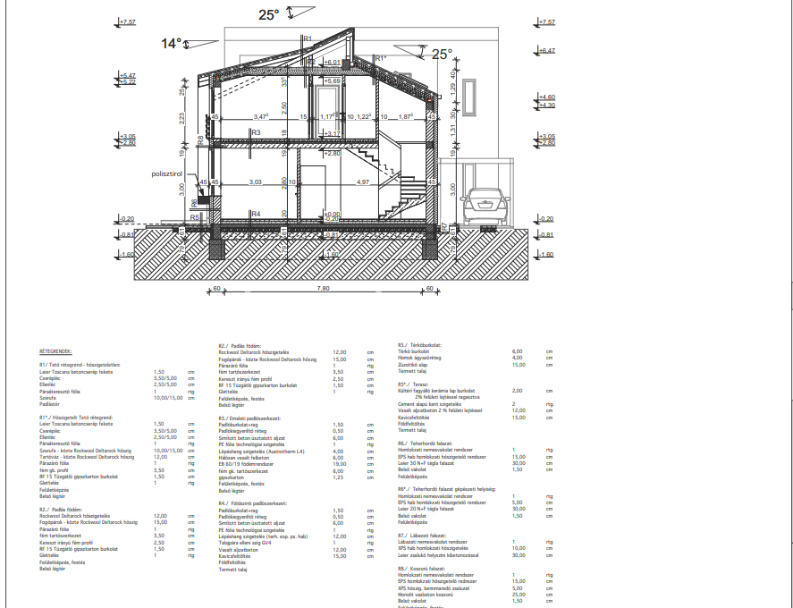
Tervezésnél a családok nyugalmát és kényelmét tartották legfontosabbnak, ezért a modern formavilágú házak külön gépkocsi beállóval és füvesített kerttel lettek megtervezve. Az épületeknek csak a külön, külső bejáratú gépészeti helyiségeknél van kapcsolódási pontjuk egymással, a főbb gépészeti berendezések akár mobiltelefonról vezérelhetők / szabályozhatók. Az energiáról a napelemes rendszer, a melegről a hőszivattyús padlófűtés, a komfortos hőmérsékletről a 3 rétegű thermo üvegű nyílászárók, a Leiertherm 30N+F falazat, a 15 cm Austrotherm szigetelés dryvit burkolattal, és a 30 cm kőzetgyapot tetőszigetelés gondoskodik.
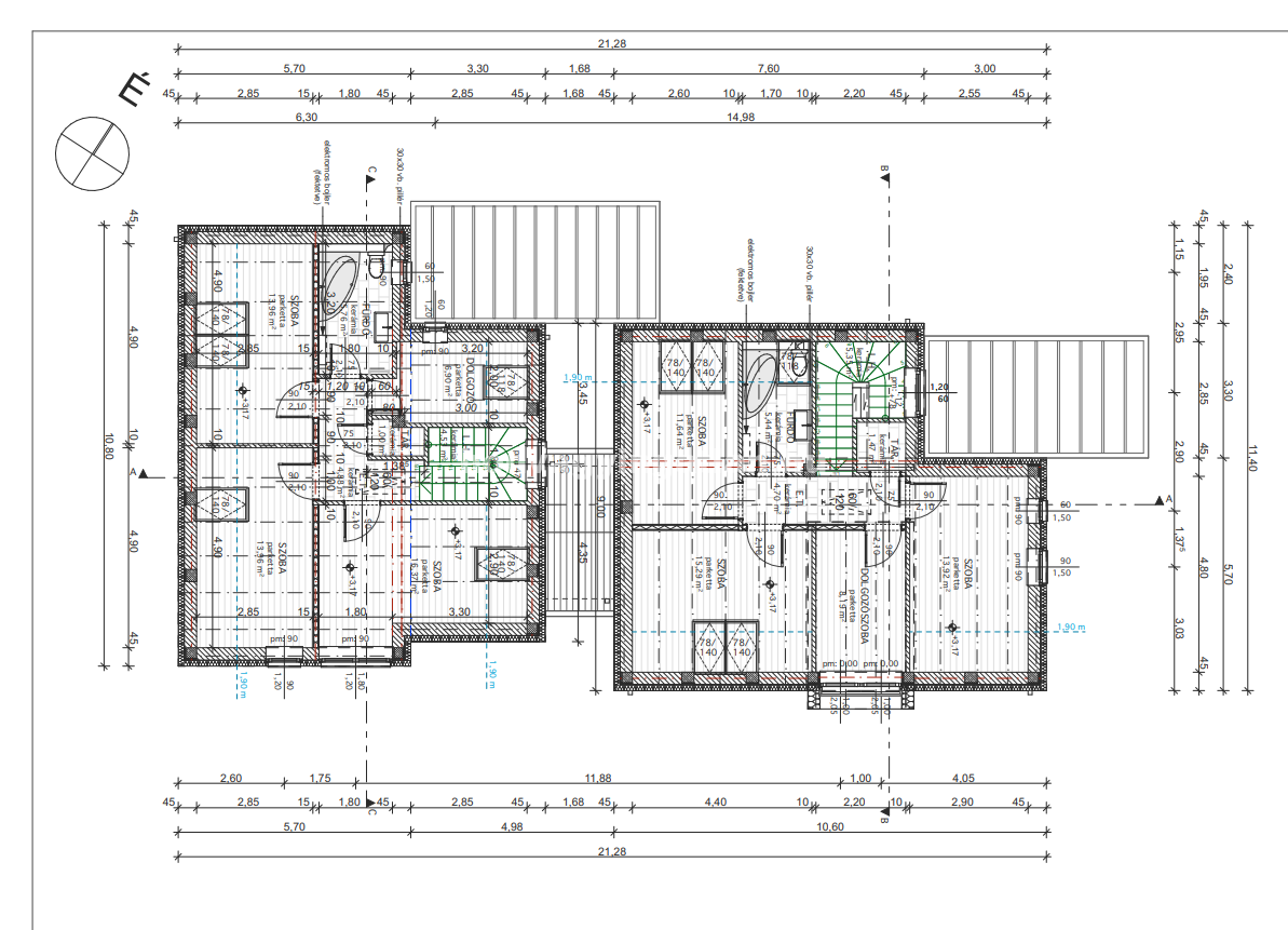
A 133,88 m²-es lakás elosztása: földszinten amerikai konyhás kertkapcsolatos nappali terasszal, előszoba, 1 szoba és fürdőszoba került kialakításra, az emeleten 3 szoba, fürdőszoba és egy dolgozó szoba kapott helyet. A szobákban laminált padló, a többi helyiségben kerámia járólap kerül beépítésre.
Ingatlan ára: 94.5 millió forint/ház
Keressen bennünket, akár hétvégén is!
Ingatlanvásárláshoz szeretné a legkedvezőbb hitelajánlatot megtalálni? → Hitelügyintézés
Segítünk megtalálni, aki éppen az Ön eladó ingatlanát keresi! → Eladnám az ingatlanom!
Ráckeve központjában, boltok, óvoda, bölcsőde és iskola közvetlen közelében eladó…
23.000.000- Ft irányár
Dömsöd központjában, 897 m²-s telek felén, 180 m²-s épületben: utcai…
35.000.000- Ft
Ráckeve történelmi központ közeli KÖZVETLEN vízparti 1370 m²-s telken, 220…
225.000.000- Ft
Családi ház Dömsödön – Dömsöd dabi részén, 1050 m²-s telken,…
32.000.000- Ft
VEGYESBOLT ÉS CSALÁDI HÁZ DÖMSÖDÖN – CS44
